Villa a schiera in vendita

Rimini, Via marecchia - Borgo San Giuliano
€ 1.450.000
4 locali 4 locali
272 Mq 272 Mq
4 bagni 4 bagni

Villa a schiera in vendita

Rimini, Via marecchia - Borgo San Giuliano

Descrizione annuncio

BORGO SAN GIULIANO : Nel cuore del suggestivo Borgo San Giuliano di Rimini, proponiamo in ESCLUSIVA, la vendita di una prestigiosa villa che unisce fascino storico e comfort moderno.

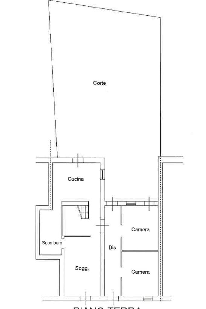
Questa residenza si sviluppa su più livelli, offrendo ampi spazi per ogni esigenza. Con una superficie di oltre 270 mq interni, la villa dispone di spazi ampi abitativi in aggiunta ad una grande giardino privato.

La zona living è composta da un grande soggiorno con affaccio su una loggia privata e giardino esclusivo. Proseguendo, ampia sala da pranzo e cucina abitabile. Sullo stesso piano troviamo un bagno e un guardaroba.

Salendo al piano superiore vi è un ulteriore soggiorno, due camere da letto matrimoniali, bagno e camera padronale con affaccio sul ponte di tiberio , cabina armadio privata e bagno con doccia walk-in.

Infine, la punta di diamante di questa prestigiosa villa, un piano privato loft servito da bagno e vista panoramica.

La posizione nel borgo garantisce un'atmosfera unica, con vicoli caratteristici e la vicinanza a tutti i servizi essenziali.

La struttura, pur mantenendo il suo carattere originale, offre la possibilità di personalizzazioni per adattarsi al meglio alle esigenze contemporanee.

La villa è stata completamente restaurata. Le aperture delle persiane e del portone d'ingresso sono in domotica. Il pavimento è in parquet e gli infissi sono in pvc termici. La casa è stata isolata completamenti.

Un'opportunità imperdibile per chi cerca una dimora che coniughi storia e funzionalità in una delle zone più affascinanti di Rimini.

Se sei interessato a questa villa puoi contattare Sofia al numero 3514612293.

Mostra tutto

Nelle vicinanze

Trasporto pubblico Trasporto pubblico
Rimini
Rimini
780 m
Cesare Battisti
Cesare Battisti
520 m
Rodi
Rodi
540 m
Trasporto pubblico
1,4 Km
Ricariche auto elettriche Ricariche auto elettriche
Rimini Ponte di Tiberio | EnelX
130 m
Eneldrive Stazione FS
700 m
Hotel Crosal
1,2 Km
Eneldrive Parco Federico Fellini
1,3 Km
Hotel Ambasciatori
1,4 Km
Scuole Scuole
UniBo - Campus Corso D'Augusto
180 m
Università di Bologna - Complesso Navigare Necesse
320 m
UniBo Rimini - complesso Alberti
520 m
UniBo Rimini - Campus Via Angherà
520 m
I.S.S.M “G. Lettimi”
580 m
Farmacia Farmacia
Versari
140 m
Farmacia Centrale
420 m
Farmacia
430 m
Dupre Farmaci
570 m
Dupré
580 m
Ospedali Ospedali
Ospedale dei villeggianti
2,2 Km
Ospedale Infermi Rimini
2,8 Km
Supermercati Supermercati
Conad
330 m
Supermarket Cinese
450 m
Balkan Market
670 m
Zhong Nan Hai
720 m
Econatura
730 m
Negozi Negozi
Negozi
60 m
A Casa da Noi - Bed and Breakfast
190 m
Motivi
450 m
H&M
510 m
Lingerie store Intimissimi
520 m
Bar Bar
Retroborg
30 m
Enoteca Del Teatro
60 m
Bar
200 m
3 sei 6 (356)
290 m
Bar Ferrari
370 m
Ristoranti Ristoranti
La Esse Romagnola
40 m
Sotto Sale
60 m
La Marianna
80 m
Osteria de Borg
90 m
NudeCrud
100 m
Mostra tutto

Caratteristiche

Rif.:
61175759
Piano:
3 di 3 (Piano su più livelli)
Posti auto:
1
Terrazzi:
1
Camere da letto:
3
Arredamento:
Assente
Mostra tutto
Prezzo Prezzo
€ 1.450.000
Rata mutuo Rata mutuo
€ 6.737 / mese
Spese annue Spese annue
€ 0
Proponi il tuo prezzoProponi il tuo prezzo

Classe Energetica

Questo immobile è esente da classe energetica
Anno di costruzione:
1949
Riscaldamento:
Autonomo
Tipo impianto:
A pavimento
Tipo alimentazione:
Metano

Ti interessa visionare l'immobile?

Fissa un appuntamento  Fissa un appuntamento

Richiedi informazioni

Clicca su Leggi per aprire l'informativa
* Questi campi sono obbligatori

Calcola il tuo mutuo

Semplice e senza impegno
Anticipo

( % )
Mutuo

( % )

pochi semplici passi

inserisci i tuoi dati
Questionario completato
Grazie per aver richiesto un appuntamento senza impegno con un nostro Consulente del Credito e Assicurativo.

Hai inserito correttamente tutti i dati necessari e a breve riceverai una e-mail con un link da convalidare per inviare i tuoi dati.
Affiliato
Studio Rimini Celle Srl
Via XXIII SETTEMBRE 1845, 69 47900 Rimini (RN)

Il nostro staff


  • Simone Chiumiento
    Collaboratore

  • Sofia Cannizzaro
    Responsabile

  • Sara Guidi
    Collaboratrice

  • Xhesika Hoxha
    Collaboratrice

  • Alina Malyarska
    Coordinatrice

  • Giada Carlotta Nucci
    Affiliata
Via XXIII SETTEMBRE 1845, 69 47900 Rimini (RN)
Zona: Celle - Rivabella - San Giuliano Borgo - Centro Storico
Mostra su mappa
Orari: Dal lunedì al venerdì dalle 09:00 - 13:00 e dalle 15:00 - 19:30. Sabato dalle 09:00 -13:00 e il pomeriggio su appuntamento.
Affiliato
Studio Rimini Celle Srl
Via XXIII SETTEMBRE 1845, 69 47900 Rimini (RN)

2026 Tecnocasa Franchising S.p.A. - P. IVA 08365160152 - Via Monte Bianco 60/A 20089 Rozzano (MI). Ogni agenzia ha un proprio titolare ed è autonoma. Privacy policy | Policy utilizzo | Cookie policy